Brian Austin Posted March 14, 2024 Posted March 14, 2024 (edited) Over time I'll be posting my pictures of gas stations and garages, etc. Here's one from western Massachusetts (Belchertown). B&W pictures are from 1992, while the color ones are from 1999. UPDATE: I have come across a recent picture showing the present condition of the structure. While it does still stand today, it has been much modified. I was unaware of this configuration, as I had not seen the building since 1999. I have added this image, from the historical building archive of the state of Massachusetts known as MACRIS. According to the historical survey, this one originally dated to around 1939, and was an ESSO station. Edited March 15, 2024 by Brian Austin 3
Brian Austin Posted March 14, 2024 Author Posted March 14, 2024 Central Massachusetts (Webster). No longer standing. 2
Brian Austin Posted March 14, 2024 Author Posted March 14, 2024 (edited) Central Massachusetts (Brookfield). Still standing, I believe. Edited March 14, 2024 by Brian Austin 3
ChrisBcritter Posted March 14, 2024 Posted March 14, 2024 Paducah, KY: Formerly Rudy Lyles' Standard station. 2
David G. Posted March 14, 2024 Posted March 14, 2024 Those are some great photos! You really capture the nostalgic feel of earlier times. David G.
ranma Posted March 14, 2024 Posted March 14, 2024 (edited) There are several Old service stations where I live that have been repurposed into other things. Lincoln highway east : Former Mobile station now a auto repair shop, just south of it was a Shell station: Browns used cars, Across the road from that was the Sinclair station : Klostermans Pizza, East main st Marathon station: LLyods lifetime muffler/tires. West main st Sohio station : Best little hair house. West Main 66 service station: currently vacant. West main st Handy man oil: Vacant. South Shannon/van wert decatur road Sohio service station: Superior Auto. E main st Service station Unknown currently vacant N. Washington st Unkown former service station and former used car lot :now vacant. Edited March 15, 2024 by ranma
FoMoCo66 Posted March 15, 2024 Posted March 15, 2024 I saw this on a trip to South dakota to see Mount Rushmore (and more). This is in deadwood South Dakota, thought it was cool and I dont know the history or anything.
Brian Austin Posted March 15, 2024 Author Posted March 15, 2024 (edited) FWIW I had to modify my initial post. There was some late-breaking info and a picture to add. Edited March 15, 2024 by Brian Austin
Brian Austin Posted March 15, 2024 Author Posted March 15, 2024 (edited) On with the show. Cambridge, MA (1999). Edited March 15, 2024 by Brian Austin
slusher Posted March 15, 2024 Posted March 15, 2024 Brings bask memories! I really enjoyed the pictures…
Brian Austin Posted March 16, 2024 Author Posted March 16, 2024 Watertown, MA (B&W 1991, color circa 1995). Note the brickwork at the back corner, and the grease ramp outside. 1
peteski Posted March 30, 2024 Posted March 30, 2024 Here is a long abandoned Texaco gas station in Hooksett, NH. Looks like it has been abandoned many decades ago. I'm surprised it is still standing. Also surprising that there is no graffiti on it. The container was tagged (but it might have been tagged before someone dropped it off there). Maybe the structure is too old and decrepit for taggers. 3
John M. Posted March 30, 2024 Posted March 30, 2024 My late dad had a side job pumping gas at a Sinclair station years ago that a friend of his managed. It was located on Riverside Ave, In Medford Mass. It had the company's mascot Dino The Dinosaur painted on the roof of the station. The station is still there to this day but it's a it's a self serve Sunoco. I miss the old school stations.
Brian Austin Posted April 2, 2024 Author Posted April 2, 2024 From a 1950s book on model railroading.
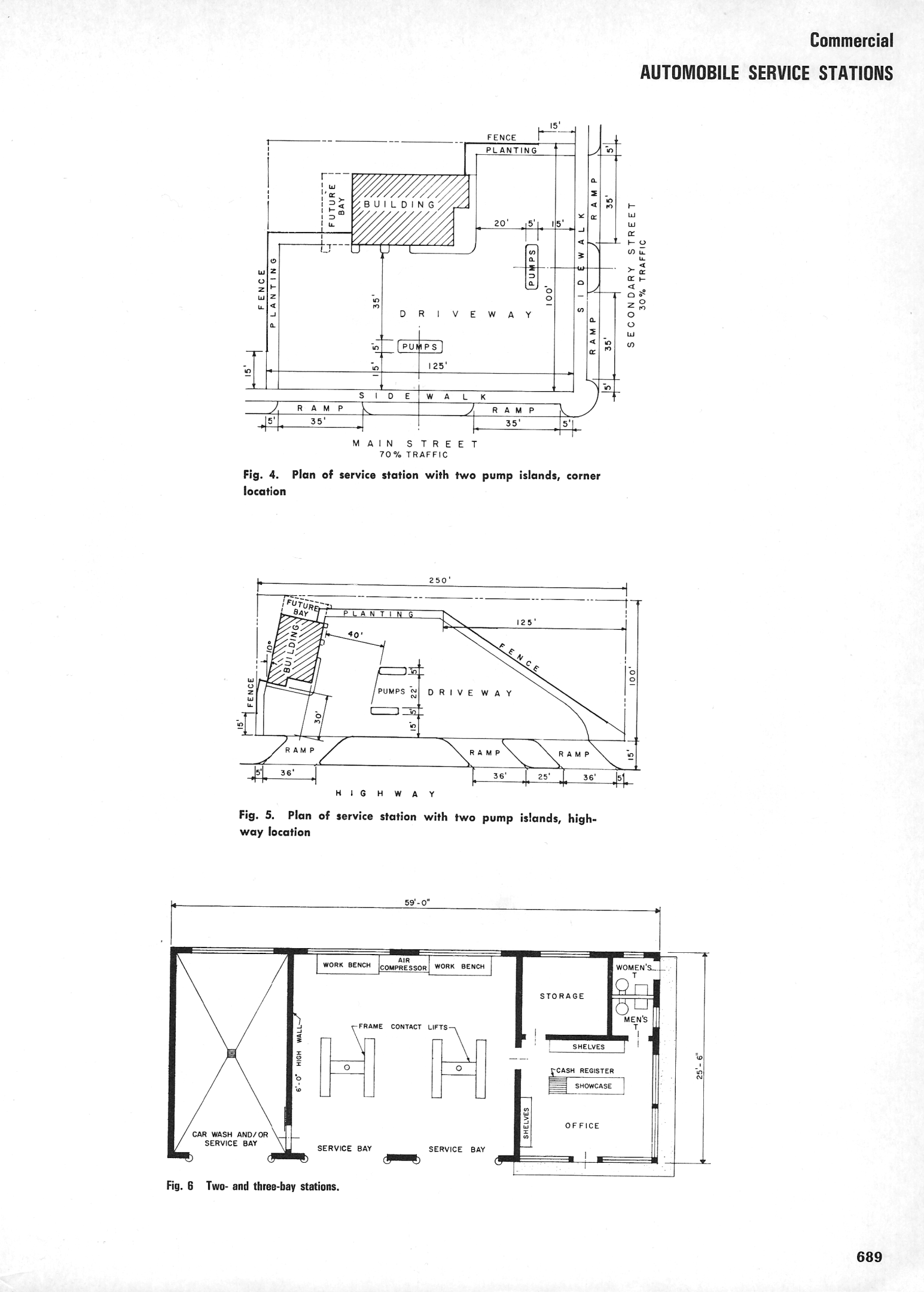
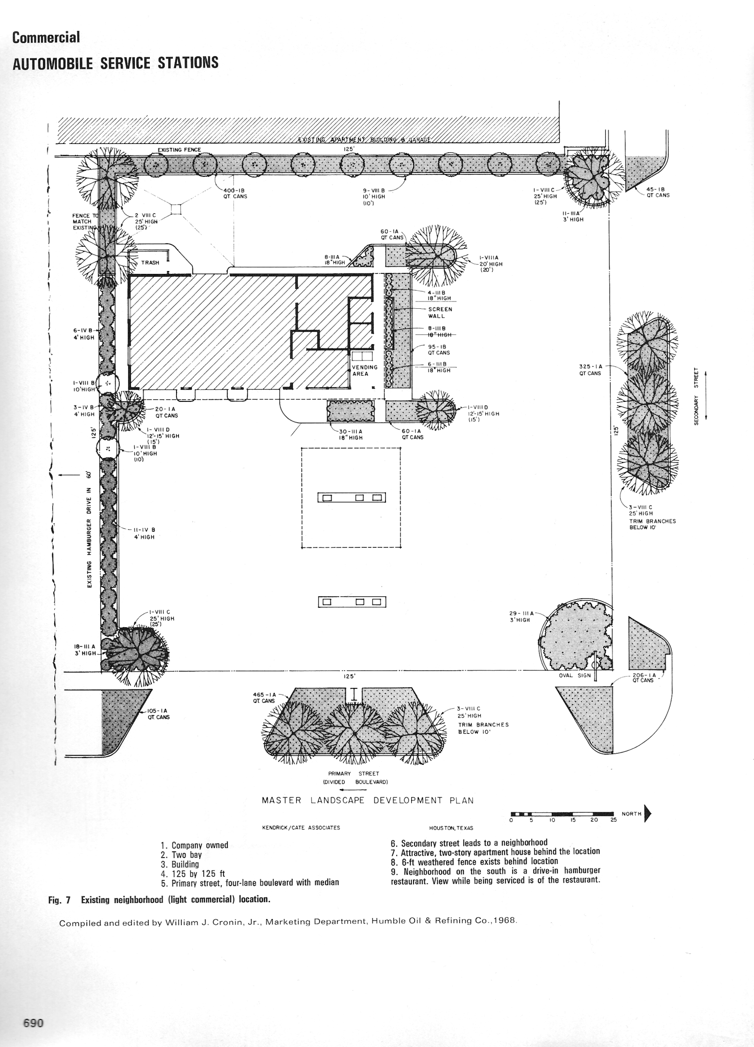
Brian Austin Posted April 2, 2024 Author Posted April 2, 2024 From a book of architectural standards.
Brian Austin Posted April 2, 2024 Author Posted April 2, 2024 (edited) Edited April 2, 2024 by Brian Austin
Brian Austin Posted April 17, 2024 Author Posted April 17, 2024 Full-sized replica of a Frank Lloyd Wright design on display at the Buffalo Transportation Pierce Arrow Museum in Buffalo, NY, as seen in 2018. 1
89AKurt Posted April 26, 2024 Posted April 26, 2024 At one time I thought building Route 66 gas stations would be fun. I built one, it's my icon picture. The problem, need lots of room, and no cat.
ChrisBcritter Posted April 29, 2024 Posted April 29, 2024 (edited) Hiding in plain sight in Baldwin Park, CA: I'd bet a dollar that this house at Baldwin Park Boulevard and Shadylawn was a gas station once upon a time: Redfin says it was built in 1952 but it looks older. EDIT: Checked Historic Aerials and the 1948 shot shows vacant land, while the 1952 shot seems to show it under construction. Next available is 1964 and it looks residential with trees, so... guess I need a time machine to know for sure. Edited April 29, 2024 by ChrisBcritter
Recommended Posts
Create an account or sign in to comment
You need to be a member in order to leave a comment
Create an account
Sign up for a new account in our community. It's easy!
Register a new accountSign in
Already have an account? Sign in here.
Sign In Now